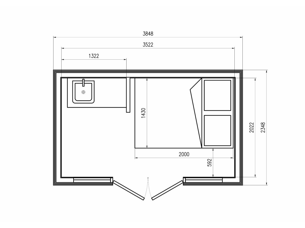
modulární domek 2.3 m x 3.9 m

Neohodnoceno
268 989 Kč
Na objednávku

Standardní sada: 

  • Izolovaná konstrukce 100 mm 
  •  Vnitřní/vnější obklad 
  • Bitumenová střecha 
  • Lakovaná luxusní dřevěná okna a dveře 
  •  Linoleum podlahy 
  • Elektrická instalace  

Kategorie: MODULÁRNÍ DOMKY
Stavebnice i v celku
Stavebnice i v celku
Volba je na vás
Montáž i návrh
Montáž i návrh
Kompletní servis
15 let na trhu
15 let na trhu
Rozumíme saunám
Vyrobeno v EU
Vyrobeno v EU
Špičková kvalita

Popis produktu není dostupný

Buďte první, kdo napíše příspěvek k této položce.

Nevyplňujte toto pole:

Bezpečnostní kontrola